pregled nekretnine ID: 367626
prodaja

176m² 600.000€
Beograd, Barajevo, Brđanska

Objavljen: 03.03.2026. / Izmenjen: 03.03.2026.


Tip: poslovni prostor

Cena: 600000.00 EUR

Površina: 176.00 m2

Grad: Beograd

Opština: Barajevo

Ulica: Brđanska

Prijavi problem  |  Pošalji na e-mail


Kontakt:

Moj Kvadrat doo

011/334 88 36

065/303 94 39

http://www.kvadratnekretnine.com

Opis:

  • Uknjiženo
  • Telefon
  • Parking
  • Kanalizacija
  • Interfon

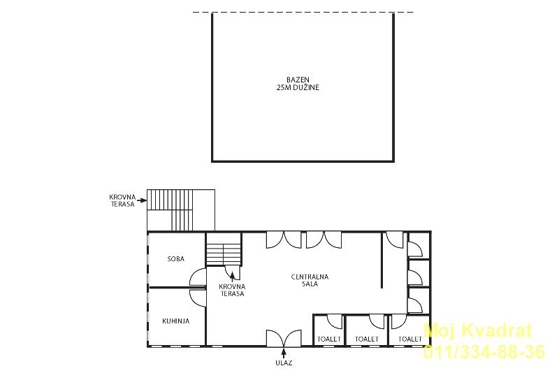
Barajevo - Brđanska, kompleks sa bazenima + plac

kompleks sa bazenima 176m2 + plac 85a, telefon, interfon, parking

Na mestu gde se ukrštaju vetrovi koji pozitivno utiču na psihofizičko zdravlje ljudi, tzv. "ruža vetrova", prodaje se sportski centar sa dva bazena. Ceo objekat je uknjižen na 176m2, ali poseduje i natkrivenu terasu što ukupno čini 352m2 korisnog prostora. Objekat se nalazi na placu površine 85a.

Sportski centar poseduje košarkaški teren i dva bazena: bazen za odrasle 20m x 8m x 1,45m i bazen za decu 3m x 8m x 0,9m. U objektu postoji izdvojena prostorija u kojoj se nalazi kotao za grejanje i filteri vode sa zeolitom.

Objekat ima sopstveni parking.

Pogodno je za razne namene: rođendane, rekreaciju, marketinške događaje...

Za svaku preporuku!

Uknjižen.

Agencijska provizija 2%






0/1000